Conmara Estate – Custom House and Land Package
Lot 10/9 Pureirei Road, Clevedon, Manukau City, Auckland
Fully Custom House and Land Package
Come for a walk with us around Conmara Estate to see the quality of our builds that have helped shape the subdivision. Our commitment to quality and design is reflected in every home we’ve built, blending modern living with the charming essence of Clevedon
Titles are Issued
Still want an easy commute but away from the hustle and bustle of the city?
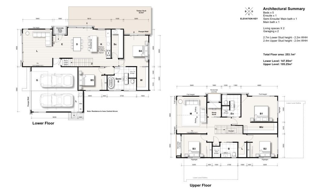
Explore the potential of this exceptional 253m2 design set on a generous 508m² section
A stunning multi-generational home, designed with two master bedrooms
This suggested Plan Features:
- 253m2 home
- Five bedrooms or 4 bedrooms + study
- 2 x Master bedroom complete with ensuite and walk in wardrobe
- Three bathrooms
- Two living areas
- Designer kitchen and scullery
- Dining area
- Large Internal access 2 car garage – 2 off street parking and street parking
- Built in laundry with storage
Includes:
- Vitex timber decking
- Concrete driveway and landscaping package
For more information please contact David today
Thinking of adding your own touch? Talk to us today. We’re here to help you customise and create a space that truly reflects your personal style and needs. Let’s make your vision a reality together.
Not quite what you’re after? Visit http://www.cambridgehomes.co.nz to view more of our pre designed plans or we can custom design a plan just for you
*The images and plan advertised are an indication of what can be built on this site for the package price. Subject to engineering and final design choices
| In the area |
Shops, café, Local School, Petrol Station, local farmers markets and a great community
|






