Stunning house & land package with rural aspect in Ohauiti
Lot 1002 Kokopu Lane, Three Creeks, Ohauiti, Tauranga
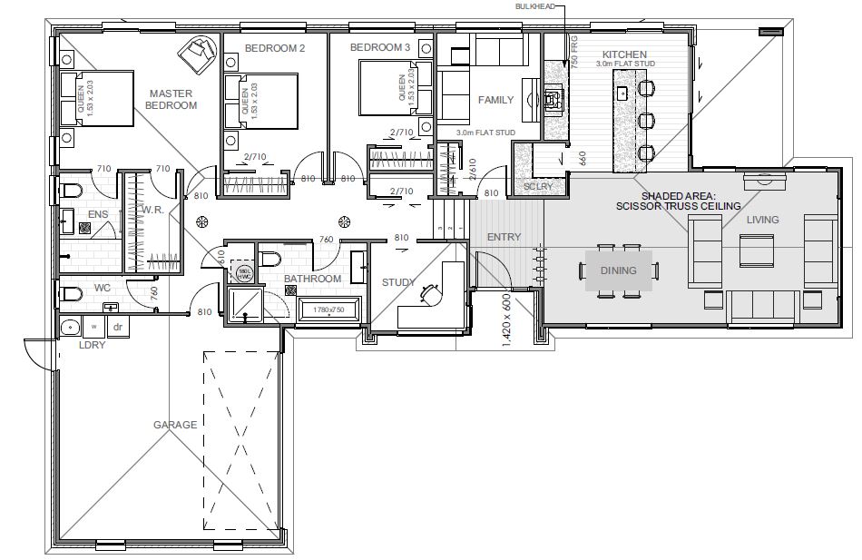
House: 346m²
Land: 593m²
Price: By Negotiation
Situated in Ohauiti, this house & land package features:
- 3 bedrooms plus study
- Rural views
- Master bedroom includes walk in wardrobe and ensuite with walk in tiled shower
- 2 Living areas – Lounge and separate family room / media room
- Dining area
- Covered Alfresco area
- High ceilings in living and dining areas
- 2 ½ Baths – Main bathroom, ensuite and separate WC
- Designer kitchen and scullery complete with Bosch Appliances
- Internal access 2 car garage
- Fibre Internet connection
- Heat pump
Materials
- Brick and Linea Oblique Vertical cladding
- Longrun Coloursteel roofing, fascia downpipes
- Aluminium joinery with double glazed windows
- High quality finishes and design
- 10 year Builders Guarantee
This exceptional house and land package is the perfect opportunity to secure a home that combines modern elegance with the tranquility of rural aspects.



