• Showhomes
  • House Plans
  • Custom Design & Build
  • House and Land Packages
  • Terraced House Plans
  • Developments
    • Mountain Views Development
    • Fabia Factory Lane
    • Frontier Estate
  • Locations
    • Northland
    • Auckland
    • Bay of Plenty
    • Coromandel
    • South Waikato
    • Wellington
  • About
    • Testimonials
    • Developers
    • Home Building Franchise
    • Privacy Policy 2020
  • Contact Us
  • House and Land Packages
Cambridge Homes
Cambridge Homes
0508 383 7978 sales@cambridgehomes.co.nz
  • facebook
  • linkedin
  • instagram
  • Showhomes
  • House Plans
  • Custom Design & Build
  • House and Land Packages
  • Terraced House Plans
  • Developments
    • Mountain Views Development
    • Fabia Factory Lane
    • Frontier Estate
  • Locations
    • Northland
    • Auckland
    • Bay of Plenty
    • Coromandel
    • South Waikato
    • Wellington
  • About
    • Testimonials
    • Developers
    • Home Building Franchise
    • Privacy Policy 2020
  • Contact Us
  • House and Land Packages

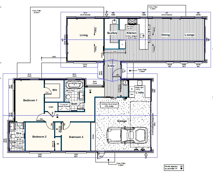
Thornbury – 3 Bedrooms – (188.9m2)

in
3
2
2
2
188.90
Play Pause Unmute Mute

Share

Share on Twitter Share on Facebook Share on LinkedIn

Previous Post

Dullingham - 4 Bedrooms - (197.2m2)

Join our monthly e-newsletter

Discover
House Plans House & Land Showhomes
Locations
Auckland South Waikato Coromandel Bay of Plenty Wellington Northland
Learn More
Design & Build Customer Stories Franchise Opportunities About Privacy Policy
Contact
Contact Us
Email Us Call 0508 383 7978

© 2023 Cambridge Homes Holdings